Cavco Homes

Vivid

INQUIRE TODAY

DETAILS

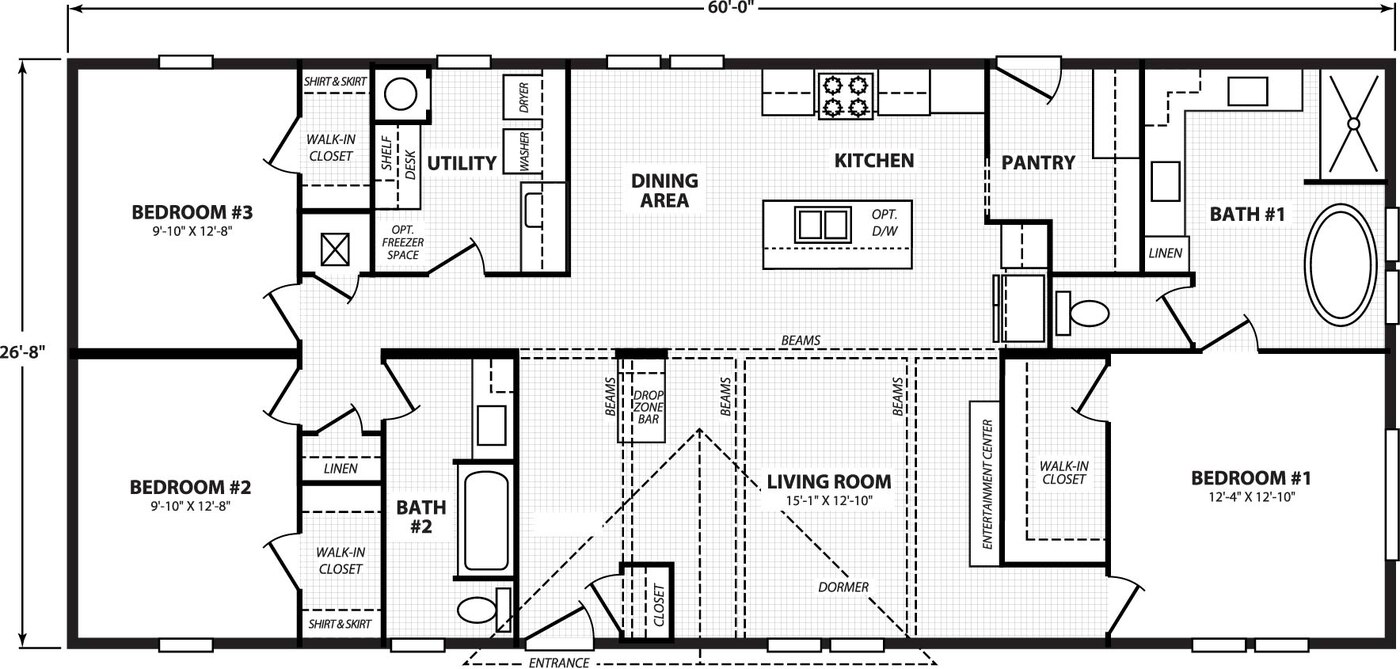
The Vivid 28603N is a graceful double-wide manufactured home offering about 1,600 square feet of thoughtfully arranged living space. Its layout features three bedrooms and two full bathrooms, with a split plan that places the primary suite on one side for privacy while the secondary bedrooms and guest bath occupy the opposite wing. The heart of the home is the open living, dining, and kitchen area, which flows seamlessly and is ideal for both everyday life and entertaining. A sizable kitchen island, abundant cabinetry, and smart design touches boost functionality, while the overall floor plan strikes a balance between comfort, efficiency, and modern warmth.

3D TOUR

FLOOR PLANS

HOME FEATURES

Built-In Entertainment Center

Drop-Zone Entry Way Bar

Walk-In Closets in Each Bedroom

Ensuite with Garden Tub, Separate Shower, and His and Her Vanity

Ample Storage Options Throughout

Utility Room with Washer/Dryer Hookups

Energy Efficient Appliances