Clayton Homes

Aspire

INQUIRE TODAY

DETAILS

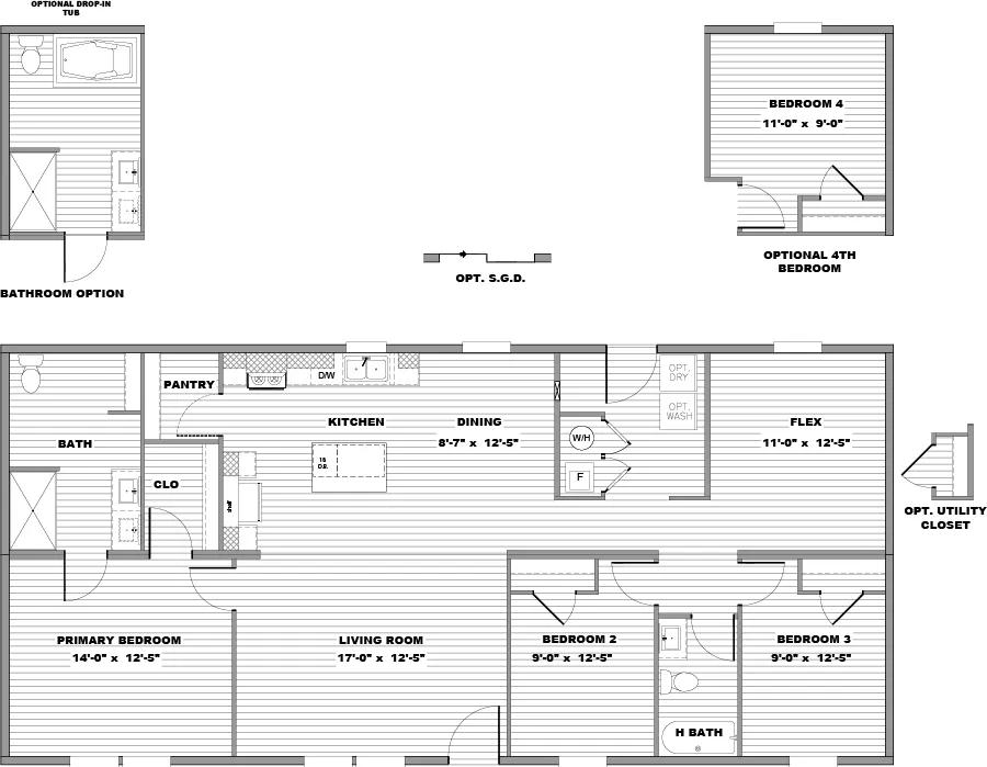
The Clayton Horizon Aspired Manufactured Home offers 1,475 sq. ft. of spacious and functional living space with 3 bedrooms and 2 bathrooms. Its open-concept design creates a bright, flowing layout, ideal for family living and entertaining. The master suite is a true retreat, featuring an ensuite with a double sink vanity and a generous walk-in closet for added convenience and storage. The home also includes a utility room with washer/dryer hookups, enhancing everyday functionality. Combining comfort, style, and practical design, the Horizon Aspired is perfect for those seeking a roomy and modern living environment. Come see us today!

3D TOUR

FLOOR PLANS

HOME FEATURES

Open Concept

Split Bedrooms

Ample Storage Throughout

Ensuite with Double Sink Vanity

Walk-In Pantry

Energy Efficient Appliances

Master Walk-In Closet